Ein Bürgerhaus für Menden

Neben der Gestaltung der öffentlichen Flächen, dem Einzelhandel und den Dienstleistungsangeboten leisten qualitätsvolle Angebote zur Stärkung und Unterstützung des sozialen und kulturellen Miteinanders ein wesentlichen Beitrag zu einem attraktiven, zukunftfähigen Stadtzentrum.

Begegnung braucht Räume.

Die Stadt Menden verfolgt daher das Ziel, im zentralen Bereich der Mendener Innenstadt durch die Konzentration verschiedener sozialer Angebote ein inklusiv und generationenübergreifend ausgerichtetes, interkulturelles Begegnungszentrum für die Bürgerinnen und Bürger, ein Bürgerhaus, zu entwickeln. Das Bürgerhaus soll durch Umbau und Sanierung des bestehenden Bürgersaalgebäudes realisiert werden.

Das Bürgersaalgebäude ist Bestandteil des Rathauskomplexes und besitzt vielfältige, funktionale und technische Verknüfungen mit dem angrenzenden Verwaltungsgebäude, die es zu beachten gilt. Gleichzeitig prägt das Gebäude maßgeblich das städtebauliche Erscheinungbild der Bahnhofstraße als eine der Hauptachsen der Mendener Innenstadt.

Derzeit weist das Gebäude große funktionale und bauliche Mängel auf. Dies führt aufgrund der eingeschränkten Nutzungsmöglichkeiten aktuell zu einer geringen Auslastung, die weit hinter den potentiellen Möglichkeiten zurück bleibt. Zudem belastet das Gebäude in der Außenwahrnehmung die neu gestaltete Bahnhofstraße und die angrenzenden innerstädtischen Veranstaltungsflächen „Zeltdachbereich“ und „Platz vor dem neuen Rathaus“.

Das sie das vorhandene Potential des Gebäudes wertschätzen, dokumentierten über 8.000 Bürgerinnen und Bürger im Jahr 2019 durch ein Bürgerbegehren mit dem Wunsch, das Gebäude zu erhalten und zu einem funktionsfähigen und qualitätsvollen Bürgerhaus umzubauen.

Bereits die Erarbeitung des Nutzungskonzeptes und des Raumprogramms für das Bürgerhaus fand unter intensiver Bürgerbeteiligung statt. Dieser Weg wurde konsequent weitergeführt. Begleitet durch den Arbeitskreis Bürgerhaus, bestehend aus den Vertretern des Bürgerbegehrens, der Politik und der Verwaltung erarbeiteten die Planer die erforderlichen Unterlagen für den Förderantrag. Auf einstimmigen Beschluss des Rates konnte so der Förderantrag fristgerecht im September 2020 bei der Bezirksregierung eingereicht werden, trotz der erschwerten Rahmenbedingungen durch die Corona-Pandemie.

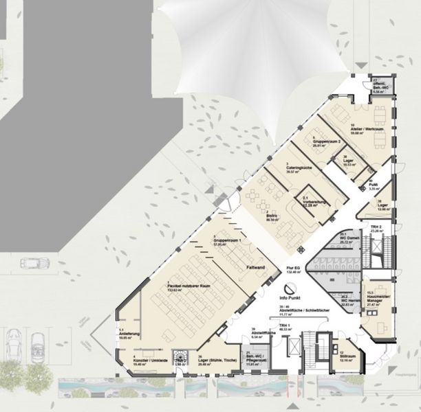
Im November 2020 wurde die Entwurfsplanung des Büros KKW aus Lüdenscheid der Öffentlichkeit in digitaler Form vorgestellt und Pläne, Kostenschätzungen, weitere Informationen sowie ein „Power-Point Vortrag zum aktuellen Planungsstand“ als Video bereitgestellt. Die Stellungnahmen der Bürgerinnen und Bürger flossen in die Beratungen des Rates der Stadt Menden zur Nachqualifizierung der Förderantragsunterlagen ein. Die Entwurfsplanung für das Erdgeschoss und das 1. Obergeschoss mit Stand Januar 2021 steht hier zur Einsichtnahme zur Verfügung: Entwurfsplanung Erdgeschoss, Entwurfsplanung 1. Obergeschoss.

 

Wir freuen uns sehr, dass unser "Bürgerhaus für Menden" in das am 08. April 2021 veröffentlichte Städtebauförderprogramm NRW 2021 aufgenommen worden ist. 

Auf der Grundlage der Förderung können nun die Planungen weiter konkretisiert und erste Ausschreiben durchgeführt werden. Auch werden die bestehenden Nutzer des Gebäudes in andere Räumlichkeiten ziehen.

Im Frühjahr 2022 soll dann mit dem Umbau des Bürgerhaus begonnen werden.


Meilensteine Bürgerhaus und Plätze

Die fünf zeitgleich umzusetzenden Baumaßnahmen rund um das Rathaus, die Tiefgaragensanierung, der Umbau des Bürgerhaus und der Plätze sowie die Erneuerung des Zeltdaches sind abstimmungsintensiv und eng miteinander verzahnt.

Im Rahmen der Sanierung der Tiefgarage hat sich aufgrund der erforderlichen Mängelbeseitigung ein zeitlicher Verzug ergeben. 
Dieser hat direkte Auswirkungen auf die nachfolgenden Gewerke und führt dazu, dass der bislang in diesem Jahr vorgesehene Aufbau des Zeltdaches unrealistisch erscheint. Dies insbesondere auch vor dem Hintergrund, da für den Aufbau des Zeltes die darunterliegende Platzfläche im Großteil fertiggestellt sein muss und für den Aufbau auf fünf aufeinander folgenden Tagen eine Temperatur von 5 Grad plus, tagsüber und nachts, nicht unterschritten werden darf.

Aufgrund der zeitlichen Anpassung kann der Zeltdachbereich inkl. Zeltdach daher nicht wie bislang vorgesehen im Frühjahr 2024 wieder genutzt werden, sondern erst ab Juni/Juli 2024. 

Diese neue Entwicklung wirkt sich aber nicht auf die Endfertigstellung der Plätze insgesamt aus. Wie angekündigt, können beide Platzbereich Zeltdachbereich und Parkplatzbereich im Frühjahr 2025 wieder gemeinsam genutzt werden.